【字体: 】 【打 印】 【导 出复 制关 闭
新能源立体公共交通场站规划设计思考——以深圳市为例(上)
深圳市城市交通规划设计研究中心有限公司 陈建凯 肖亮 姚江波
发布时间:2018-10-31

摘要:在土地资源及公共汽车设施需求的双重压力下,深圳市将新能源立体公共交通场站作为实现公交都市建设目标的重要突破口。通过总结第一批拟建的10个新能源立体公共交通场站的规划设计经验,分析新能源公共交通场站与传统场站的异同,并提出立体公共交通场站的设计要点、思路、设计参数、指标、设计原则等。同时,对场站首层及标准层交通组织、布局、内外交通组织衔接提出相应的设计策略和解决措施,为立体公共交通场站的规划设计提供相关建议和参考。

关键词:规划设计,立体公共交通场站,新能源,交通组织,深圳市

1  常规公共汽车场站和车辆发展趋势

1.1  土地紧缺促使公共交通场站向立体化转变

公共交通场站设施是常规公共汽车体系的重要基础支撑,是公共汽车线网调整优化的设施保障,并最终关系到公共交通系统的运行效率和服务水平。

深圳市作为首批公交都市示范城市,场站建设多为平面式,单车占地指标接近200 m2,土地资源的浪费导致公共交通场站的严重不足,制约了公交都市的建设。在土地紧缺以及公共汽车设施需求不断增长的双重压力下,场站的建设正逐步向着立体集约式的建设模式转变。

1.2  国家政策促进新能源公共汽车的推广

国务院先后发布《汽车产业调整和振兴规划》《节能与新能源汽车产业发展规划(20122020)》等一系列文件,鼓励在城市公共交通等领域推广使用新能源汽车,并建立电动汽车快速充电网络,加快停车场等公共场所公用充电设施的建设。

自以上规划发布以来,新能源公共汽车已在各大城市逐步推广。北京市在2017年底首次投入350辆比亚迪电动公共汽车,明确到2020年电动公共汽车比例达60%;上海市现有电动公共汽车5 800辆,比例超过20%,未来每年更新的公共汽车指标中有60%电动公共汽车;深圳市在20179月完成全市公共汽车的电动化更新[1]

2  新能源公共交通场站与传统场站差异

新能源公共交通场站与传统场站均需承担公共汽车的就近维修、保养、洗车等功能,以及满足场站本身运营管理设施、生活服务设施、安全环保设施等功能需求。同时二者也存在较多的功能差异。

2.1  核心功能由停车转变为停车+充电

新能源公共交通场站在满足一般夜间停车需求的同时,还需满足大量电动公共汽车的充电需求,包括夜间不间断充电以及白天快速补电。

电动公共汽车夜间停车时段,需充电保障白天运营时段的用电需求。以比亚迪纯电动客车为例,其充电技术采用的是交流充电模式,将电网的380 V三相交流电通过充电桩输入给车辆,从亏电到满电,平均充电时间约为3h,充满再换至下一辆车,每个充电桩平均每晚需不间断为3辆车充电。

公共汽车每天运营的总里程约为240300 km,而实际每辆电动公共汽车满电续航里程约为200 km,白天电动公共汽车满电情况下无法跑完全天所需里程,需中途返回场站快速补电。因此,需在各场站首层设置一定数量的快速充电设施,满足白天快速补电需求。

2.2  作业流程增加充电并强化其功能独立

传统场站里公共汽车进出的主要作业流程大致分两类:1)进场流程,车辆进场→交票箱→打卡(晚岗管理)→出进场时刻表→洗车(或维修检查)→停车;2)出场流程:驾驶员进场→打卡(早岗管理)→拿路牌→车辆例检→出车[2]

新能源公共交通场站在作业流程上需增加充电流程,也是在停车基础上增加的核心功能。供电电源由市政环网引至场站公共开关房,并在地下设置变配电房及发电机房为场站充电桩及相关设施提供电源。

另外,由于新能源公共交通场站需同时为数百辆电动公共汽车充电,充电期间产生较多的热量。因此其对场站的通风环境、硬件设施和空间的干湿度等都有较严格的要求。需尽量避免洗车、维修等功能区对其造成干扰,保证充电环境的相对独立,并做好相应的安全防护措施。

2.3  布局形式由平面转为立体多层

在布局形式上,传统场站以平面布局为主,存在占地多、土地浪费、停车规模小、管理不集中等问题,而立体场站采用立体多层的布局方式,占地规模小、集约利用土地资源,车辆可集中统一管理(见图1)

1  平面式向立体式转变

Fig.1  Transformation of at-grade depot to multi-storey depot

资料来源:文献[2]

3  立体公共交通场站设计准则

3.1  设计要点

1)规模与效率平衡。

立体公共交通场站建设的主要目的是解决片区的公共汽车停车需求,在确定了各场站的停车规模后,能否在有限的用地条件下,满足公共汽车停车规模,并兼顾场站内的交通功能及通行效率,能否在场站停车规模与内部运转效率之间取得平衡,是场站规划设计过程中需考虑的重要因素。

2)内外通行能力提升。

立体公共交通场站停车规模大且集中,收发车阶段,大量公共汽车集中进出场站,场站内外通行能力能否与场站进出交通量匹配,将直接影响到场站投入使用后的运营效率。设计时需在出入口布局、内部坡度设置、内外交通组织等方面进行优化,以提升场站内外通行能力,打通内外交通瓶颈,保障场站的高效运转。

3.2  关键设计参数

1)标准层层高不低于5.4 m,首层层高不低于6.0 m(以深圳市比亚迪K8K9电动公共汽车为例)

立体场站的建筑高度主要考虑在满足规范要求的前提下,尽量降低层高,以减小坡道坡度及坡长,缩短车辆亏电情况下的爬坡长度。标准层层高=行车净空+主梁截面高+楼板厚+设备管线净空需求。

行车净空:深圳市常用的三种车型高度在3.3 m以内,考虑0.4m弹性空间,即行车净空为3.7 m(见图2)。主梁截面高:主梁截面高度hb可按(1/101/18)×1b确定,1b为主梁计算跨度,当柱网密度为12 m×13 m时,梁截面高度为0.81.3 m,取平均值1.0 m。楼板厚取0.2 m。设备管线净空需求取0.5 m

2  标准层层高

Fig.2  Floor height of standard layer

资料来源:文献[2]

依据《深圳市大型建筑公交场站配建指引》,维修工间需要设置独立式修车地沟,有效深度应不小于11.2 m,原则布置在首层。而洗车功能同样需布置在首层,洗车设备对建筑高度有一定要求,需在标准层层高的基础上提高0.6 m,即首层层高不低于6.0 m(见图3)

3  首层及标准层层高要求

Fig.3  Standard of floor height for the first layer and the standard layer

资料来源:文献[2]

2)以直行坡道为主,纵向坡度不大于7%

电动公共汽车进场一般处于电瓶亏电状态,车辆爬坡能力降低,而在爬坡过程中也会进一步加剧车辆亏电,因此应尽量减小纵坡。规范对场站最大坡度的取值有7%[3]10%[4],为保障亏电车辆爬坡需求,取规范要求的最小值,即场站坡道坡度不大于7%

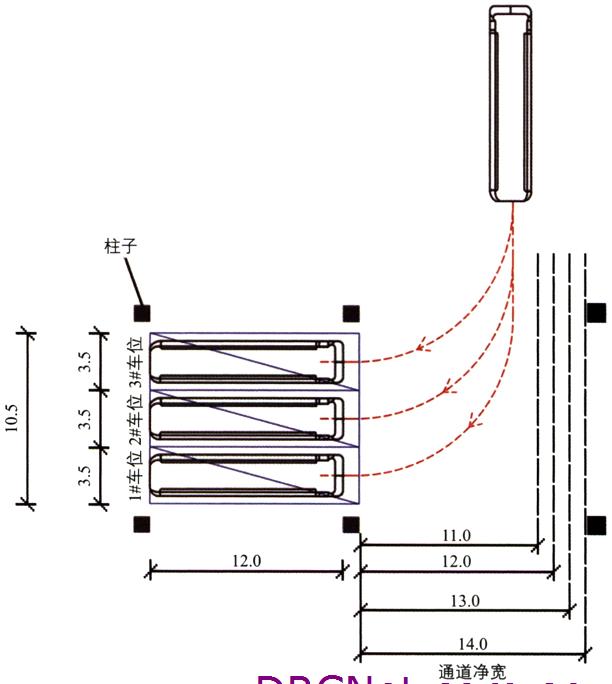
3)停车位尺寸3.5 m×13.0 m,双向通道净宽不小于14.0 m

深圳市常用的公共汽车车型参数长度不超过12 m、高3.3 m、宽2.55 m,依据《停车场规划设计规则(试行)IV大型汽车和《城市道路设计规范》(CJJ 372012)IV普通汽车停车尺寸要求,停车位尺寸不小于3.5 m×13.0 m

通过测试新能源公共汽车在通道净宽为11 m12m13 m14m四种情况下以稳定速度(35 km·h-1)停车入库时间表明,通道净宽对停车时间有较大影响,通道净宽为14 m 的情况下,入库时间最短,基本在1 min以内,对后续车辆影响较小(见图4和表1)。因此,通道净宽应尽量控制在14 m以上。

4  停车入库流线

Fig.4  Parking flow in depot

资料来源:根据上海市黄浦区重庆南路公共汽车立体停车库实验数据绘制。

1  停车实验结果

Tab.1  Parking test results

通道净宽/m

车位

进入车位时间

11

1#

30min无法就位,且触碰反光镜

2#

3#

12

1#

1min 50s

2#

2min 09s

3#

1min 58s

13

1#

1min 20s

2#

1min 25s

3#

1min 09s

14

1#

55s

2#

59s

3#

53s

资料来源:根据上海市黄浦区重庆南路公共汽车立体停车库实验数据绘制。

4)柱网密度12 m×13 m,预留充电桩位1.5m

3.5 m×13.0m的停车位尺寸基础上,墩柱尺寸按1.5 m×1.5 m[4]设置,采用一个停车单位停3辆车模式,则一个停车单位的宽度为3.5×3+1.5=12 m,因此,场站标准柱网密度采用12 m×13 m(见图5)。同时采用1:3桩车比配建新能源充电桩位,预留充电桩位1.5 m的设置空间。

5  柱网尺寸及充电桩位置示意

Fig.5  Cylinder size and charging station location

资料来源:文献[2]

5)入口宽度不小于10 m、出口宽度不小于8m

出入口宽度的设置在满足相关规范要求的前提下,需保证车辆快速进入场站,避免排队进场影响道路交通。因此,考虑在规范的基础上适当加宽入口,按不小于10 m宽进行设置,出口按照规范值不小于8m宽进行设置。

3.3  技术经济指标

场站所在地块一般都为上层次规划的交通设施用地,不占用城市生态线、蓝线等控制区域。通过对深圳市第一批拟建的10个新能源立体公共交通场站用地进行分析,按照地块条件将场站分为三类,分别为方形、长条形和不规则形地块。方形地块为边长都大于120 m的地块;长条形地块为一边小于120 m,另一边长于120 m的地块;不规则形地块为形态凹凸较多的地块(见图6)

6  各类型地块示意

Fig.6  Plot types

资料来源:文献[2]

1)单车占地指标。

单车占地指标为场站占地与停车规模的比值,是衡量场站土地使用率的主要指标(见表2)。香港综合场站一般不设置后勤管理用房,单车占地指标较低,一般约为20 m2·标车-1。深圳市在建的场站中,用地内考虑了消防环道、建筑退线、场站配套等,指标相对偏高,平均约为33 m2·标车-1

2  单车占地指标统计

Tab.2  Statistics on vehicle occupation indexes    m2·标车-1

地块条件

指标区间

指标平均值

方形地块

《城市交通》2018年第4期

Copyright© 1998-2025 DRCnet.com.cn All Rights Reserved
版权所有 北京国研网信息有限公司